Proyectos
Nosotros
Contacto
Nueva Moraleja
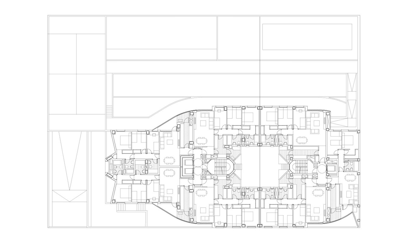
Edificio de 52 viviendas VPPB en la Parcela 133-A en “El parque de Valdebebas”.
Tipo de proyecto
Residencial
Fecha
2009
Localización
Valdebebas, Madrid
Colaboradores
Factorial 3Gestion y Vias
Anteproyecto
Proyecto básico
Proyecto ejecución
Dirección de obra
Menú