FUENTE DE LAS IMÁGENES: REALIA
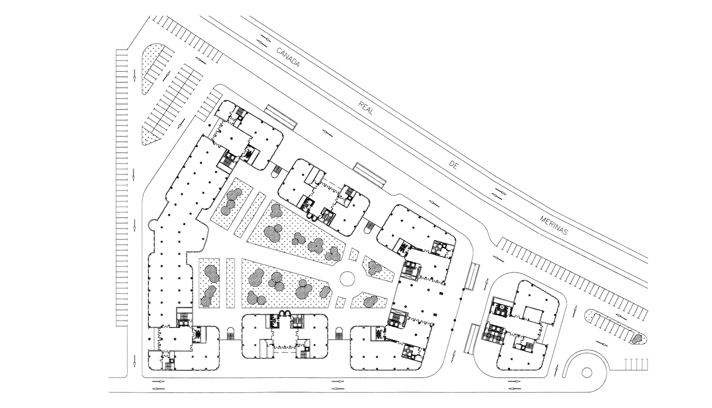
Nudo Eisenhower
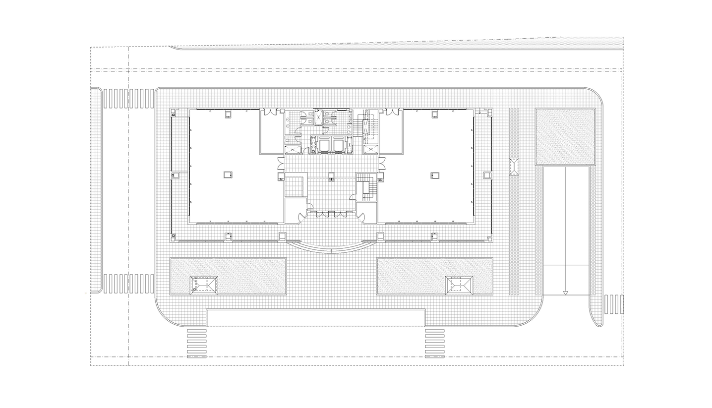
Edificios de oficinas en las Parcelas 1,2,3 y 4 del E.D. "Nudo Eisenhower", Madrid. Para Inmobiliaria S.A. y FCC
Tipo de proyecto Terciario. Oficinas
Fecha 2001
Localización Cardenal Herrera Oria, Madrid
Colaboradores Realia y FCC







