Proyectos
Nosotros
Contacto
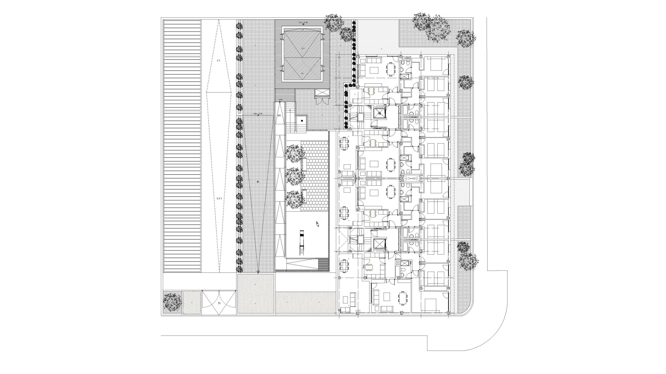
Las Adelfillas II
14 viviendas en Parcela 16-4 de Las Adelfillas, Colmenar Viejo, Madrid.
Tipo de proyecto
Residencial
Fecha
2017
Localización
Colmenar Viejo, Madrid
Colaboradores
Vitra, S.Coop.Mad., GPS y Dragados
Anteproyecto
Proyecto básico
Proyecto ejecución
Dirección de obra
Menú