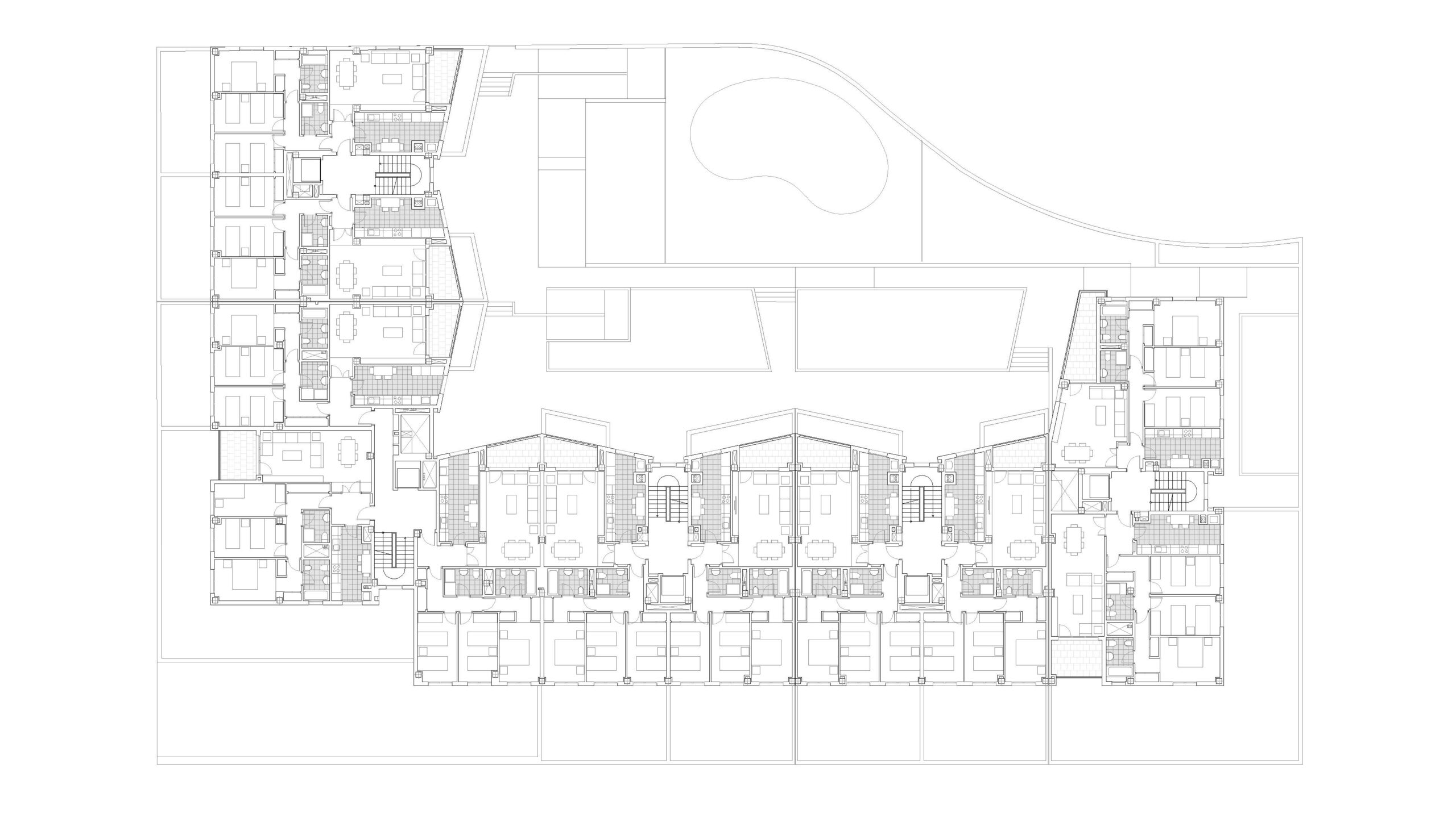
Las Adelfillas I

Edificio de 36 viviendas en la Parcela 17-2 de Las Adelfillas, Colmenar Viejo, Madrid.
Tipo de proyecto Residencial
Fecha 2009
Localización Colmenar Viejo, Madrid
Colaboradores Vitra y Ferrovial
AnteproyectoProyecto básicoProyecto ejecuciónDirección de obra