Proyectos
Nosotros
Contacto
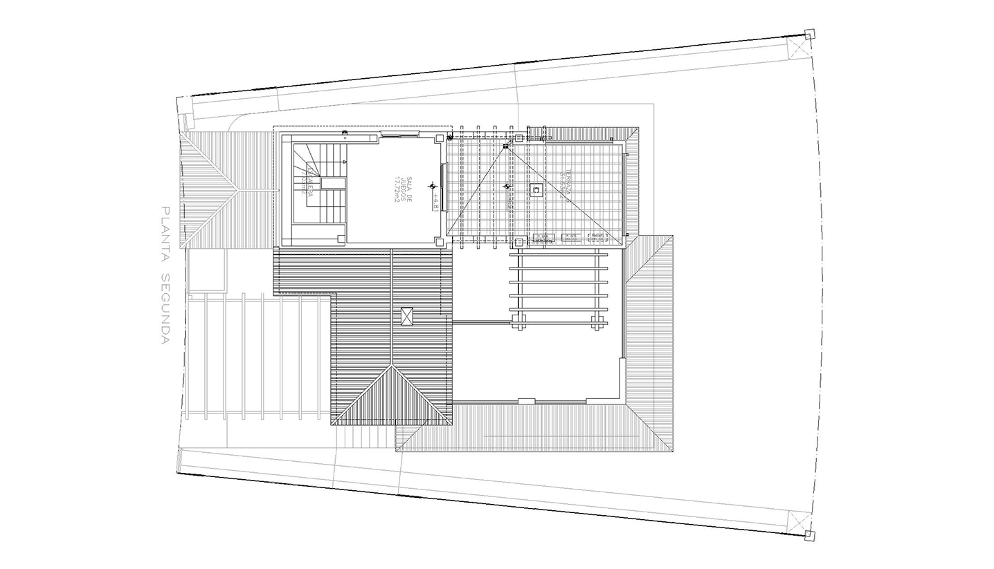
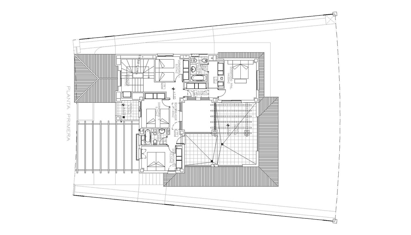
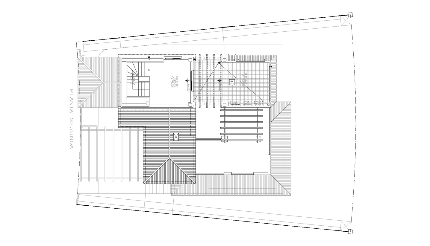
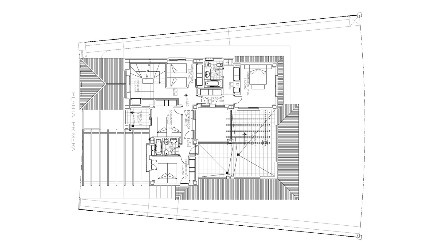
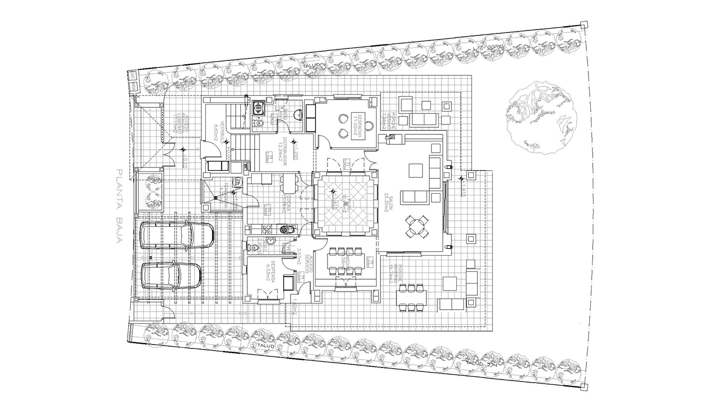
Hato Verde Residencial
134 viviendas unifamiliares en el plan parcial Hato Verde (S.UZ.11) SECTOR 2B en Guillena, Sevilla.
Tipo de proyecto
Residencial
Fecha
2008
Localización
Sevilla
Colaboradores
Realia y FCC
Anteproyecto
Proyecto básico
Proyecto ejecución
Dirección de obra
Menú