Arco de Puerta de Hierro

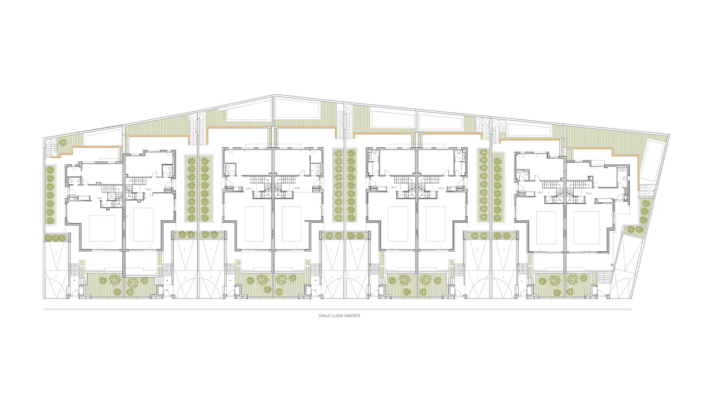
19 Viviendas unifamiliares, garajes y piscinas en parcelas en la C/Nueva Zelanda 24,38,38 y 40.
Tipo de proyecto Residencial
Fecha 2018
Localización Madrid
Colaboradores Aliaria
AnteproyectoProyecto básicoProyecto ejecuciónDirección de obra